Direccion

Manuel Castro 98 - Lomas de Zamora

Telefono

(011) 4245-5843 || 15-5713-4350

Whatsapp

1157134350

Volver

Volver al listado

Dto. P. BAJA en Complejo - IMPECABLE !!!

direccion San Martín 900 - Dto 02, Banfield destacada Propiedad destacada

Alquiler
Rebajada

$ 500.000 Rebaja 10 %

Características
tipo Departamentos tipo casa
ambiente 2 ambientes
dormitorio 1 dormitorio
baños 1 baño
toilet 1 toilette
patio Con patio
jardin Con jardín
cochera 3 cocheras
antiguedad Antigüedad: 8 años
situacion Estado: Excelente
superficie No acepta mascotas
codigo Código 141
Acerca de la propiedad

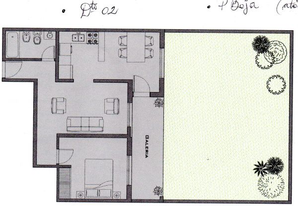
En realidad soy un 2 y 1/2 AMBIENTES muy AMPLIO y LUMINOSO, el Living-Comedor a la entrada y MUY CÓMODA Cocina con conexión para ( un ) Lavarropas, mi Termotanque es Eléctrico, una Ventana y Puerta de salida al PATIO con GALERIA y ESPACIO VERDE. El Dormitorio con AMPLIO PLACARD y vista al Patio con Pared Perimetral. Me encontras IMPECABLE.... El Baño Completo con Bañadera. Todo con Muy buen gusto, SÚPER ILUMINADO... soy SIN MASCOTAS !!! 
Cuento con Cochera ( Aparte - Opcional ) mis GASTOS COMUNES son MUY BAJOS con AySA incluidos !!!     “SIN EXPENSAS”  

                           *** IDEAL para PERSONA SOLA ó PAREJA ***   

MI UBICACIÓN 
es INMEJORABLE, si ME BUSCABAS ... te espero, GRACIAS !


PD: 
A mts. de la Av. Las Heras y 2 cuadras de Av. H. Yrigoyen.  

 

Ubicación
Consultar por propiedad
Dto. P. Baja En Complejo - Impecable !!!
Alquiler
$ 500.000

Comunicate con nosotros

error

error

error

error


Propiedades relacionadas
Chatea con nosotros situacion
contacto No dudes en contactarte con nosotros contacto
Whatsapp WHATSAPP telefono LLAMAR
Comunicate con nosotros

error

error

error

error